La corriente del “menos es más” lleva unos años ganando adeptos. Pero, ¿es también aplicable a nuestro hogar?
El movimiento de las Tiny Houses surgió en Japón en la década de los noventa con el nombre de kyosho jutaku (literalmente «microcasas»), cuando los precios de las viviendas en Tokyo subieron tanto que eran inaccesibles para una gran parte de la población.
En 2005, tras el paso del huracán Katrina, en Estados Unidos empezaron a aparecer en las zonas más afectadas las Cabañas Katrina, hogares de no más de 30m2. La idea llamó la atención de arquitectos y urbanistas estadounidenses que desarrollaron el concepto de Tiny Houses. Sin embargo, ya en 1997, el diseñador Jay Schafer había dado la espalda a la vida convencional para construirse una casa tan pequeña que solo cupiese lo imprescindible.
La crisis de 2008 hizo que este modelo de vida más económico proliferase en muchos otros países gracias al abaratamiento de las viviendas y a la reducción de los gastos de mantenimiento.
Para cuando la periodista Kirsten Dirksen estrenó el documental We The Tiny House People, las Tiny Houses ya eran un modelo desarrollado. Sin embargo, este era el pequeño empujón que le hacía falta para convertirse en todo un fenómeno social. A través de entrevistas, mostraba la vida en este formato de vivienda de diferentes personas por todo Estados Unidos.
En los últimos años, el aumento de este estilo de vida ha sido imparable. Y es que son muchas las personas que deciden abrazar un modelo más minimalista y sostenible, también en sus hogares.
¿Qué son las Tiny Houses?
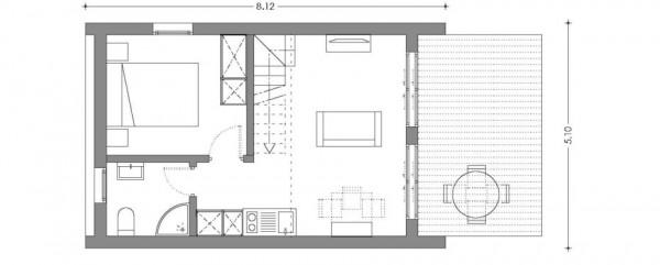
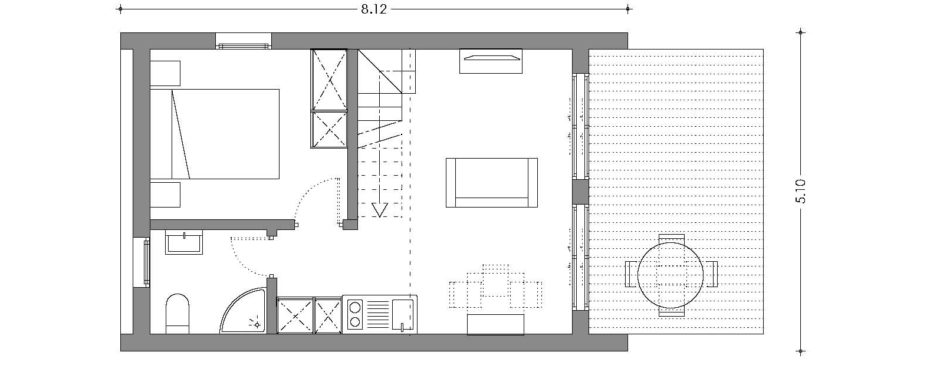
El concepto nace a raíz de la necesidad de reducir al máximo las posesiones. El resultado son casas de 20, 30 o 50 metros cuadrados (en algunos casos apuran hasta los 10 m2).
Las casas incluyen todo lo necesario para vivir: baño, cocina, habitación, espacio de salón. Pero todo optimizado para aprovechar al máximo cada rincón.
Los ideólogos de esta corriente defienden que no necesitamos demasiado espacio para vivir, simplemente, adaptarlo a nuestras necesidades. Consideran que simplificar el lugar en el que uno vive, agranda y enriquece la vida, ya que se gestiona mejor el espacio, se tiene más libertad, no se acumulan cosas innecesarias y se fomenta un ahorro que posibilita disfrutar de otras experiencias vitales.
Sin embargo, detrás de esta idea también hay un motivo medioambiental.
Las minicasas- o Tiny Houses- nacen acompañadas también de una filosofía de vida más sostenible. Materiales ecológicos, en algunos casos incluso reciclados; casas autosuficientes, menor uso de espacio y mejor eficiencia energética.
A medida que avanza esta corriente, también lo hace su tecnología. Tanto es así que algunas casas ya tienen sistemas de recogida de agua de lluvia o paneles solares incorporados.
Entre los beneficios ambientales de estas casas está el menor tamaño de las construcciones lo que implica menos espacio a calentar o a enfriar. Se reduce por tanto el consumo de electricidad y de otros combustibles; así como las emisiones derivadas de la construcción de una vivienda de mayor tamaño.
Además, debido a su tamaño, muchas Tiny House pueden ser construidas con materiales reciclados.
Sin embargo, todos los modelos de Tiny Houses coinciden en un mismo punto para mejorar la sostenibilidad: mejorar el aislamiento y por tanto, mejorar la eficiencia energética.
Las Tiny Houses en España
En España actualmente existe un vacío legal sobre este tipo de construcciones, y no se encuentra normativa específica al respecto.
No obstante, en el caso de ser transportables y no estar ancladas al suelo, las minicasas se consideran bienes muebles, al igual que las caravanas, por lo que no habría que acometer tantos trámites administrativos como a la hora de construir una vivienda convencional, aunque sí harán falta ciertos permisos. Según donde vayamos a ubicar la minicasa, será necesario informarse de la legislación específica del municipio y comunidad autónoma para asegurarnos de no tener problemas y solicitar las oportunas licencias.
En España, la empresa líder del sector se llama CSYA, ubicada en Madrid y especializada en arquitectura bioclimática. Desde su fundación en 2002 ha realizado proyectos de microcasas, un sector por el que su fundador, el arquitecto Daniel Corbí Sánchez, siente gran atracción. Cada una de las tiny houses es construida de acuerdo con las características de la parcela y cumpliendo siempre con la exigente memoria de parámetros bio, tales como el aislamiento, la orientación, el aprovechamiento del sol invernal y la ventilación, entre otros. El resultado son minicasas que ofrecen una media de ahorro energético del 70% y, por supuesto, unos costes de construcción muy inferiores a los de las casas convencionales.
La empresa Micro Casas también está especializada en minicasas de diseño pasivo (Passivhaus) y diseño Bioclimático (Estanqueidad + ventilación de fachadas y cubiertas + materiales de nulo mantenimiento).
Actualmente existen ya aldeas de mini casas, la Ty Village en Francia. Micro Compact Home en Alemania; e incluso proyectos para acoger refugiados en estas viviendas, In my Backyard.
¿Es este el modelo de vivienda del futuro?
Si te interesa esta temática, te recomendamos el curso de Especialista en Gestión Energética, que persigue la mejora en el empleo de la energía.






Deja tu comentario